26961 S Sylvan Ln, Monee, IL 60449
Toggle Navigation
Images
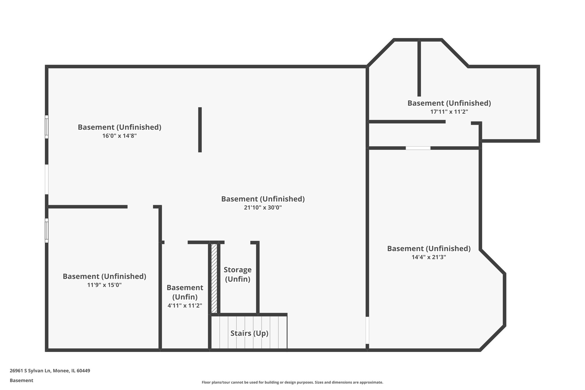
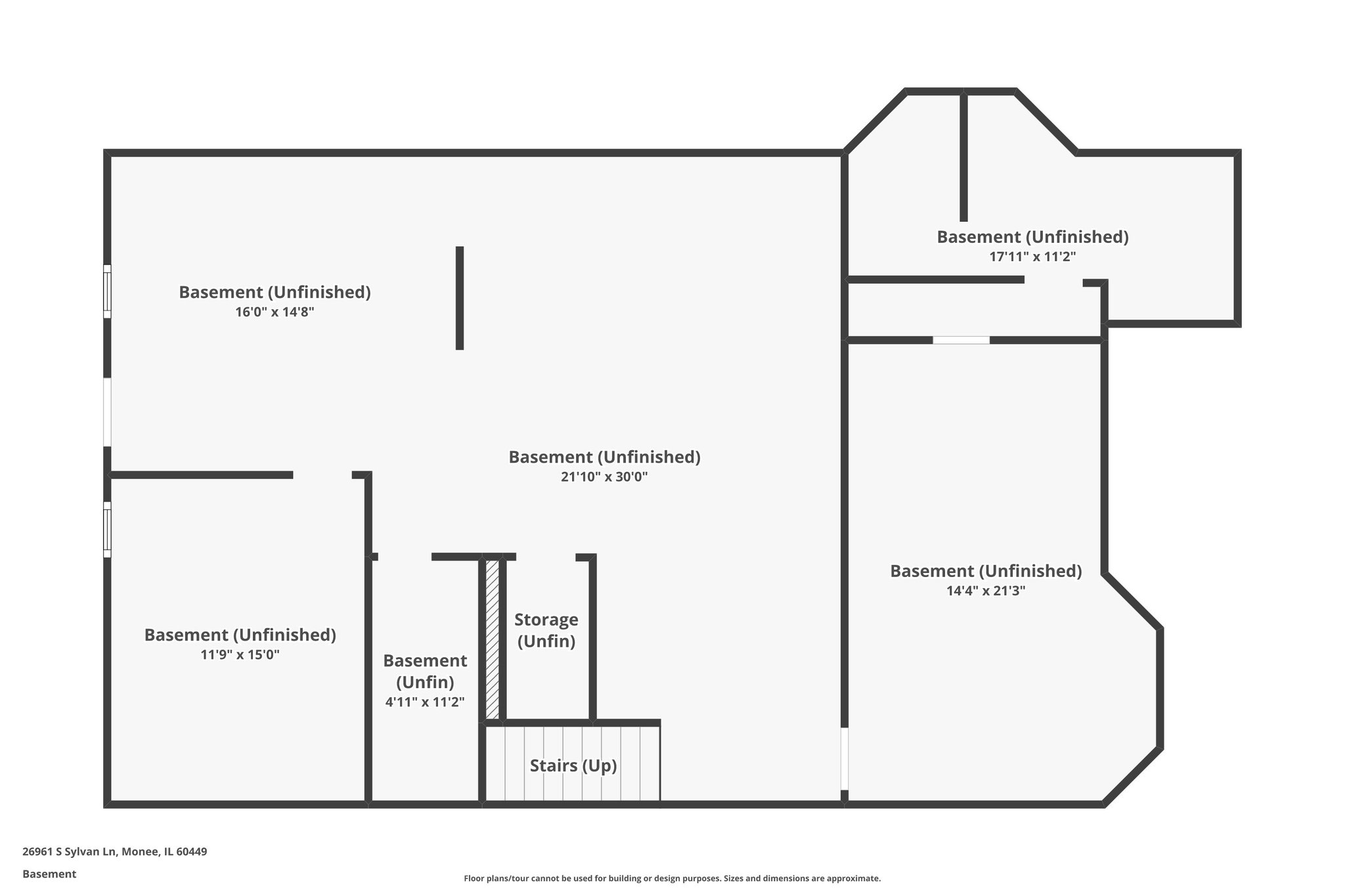
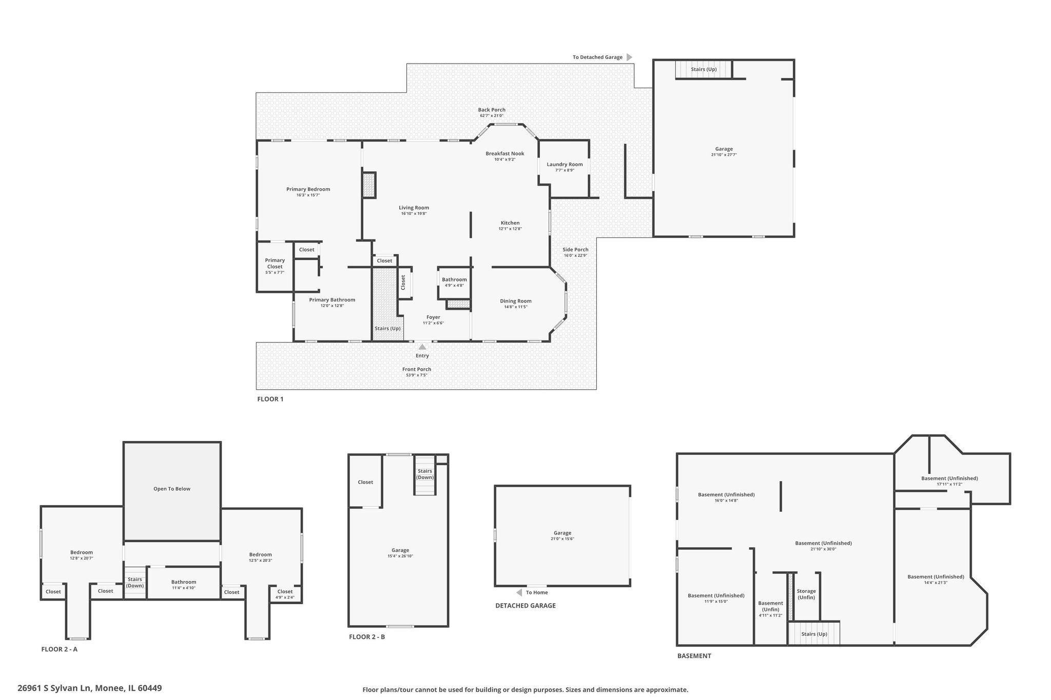
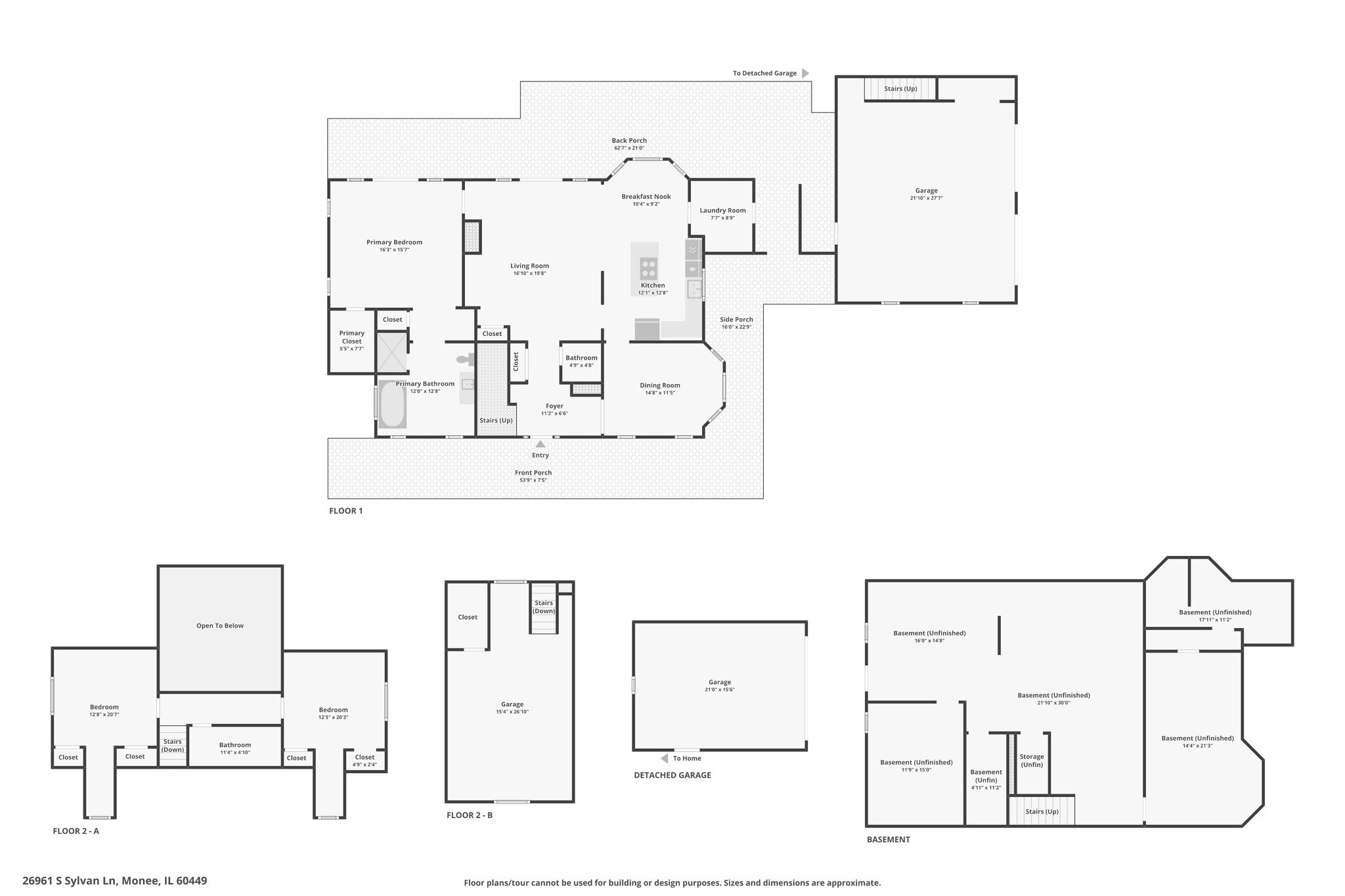
Floor Plans
3D Tour
Map
26961 S Sylvan Ln
Monee, IL 60449
Scroll to Content
Images
Slideshow
Photo Grid
Hide
Previous
Next
Show more
Floor Plans
Slideshow
Photo Grid
Hide
Previous
Next
3D Tour